MUSE
St Martin d'Hères, 38
2023
2023
MUSE
St Martin d'Hères, 38
Localisation
St Martin d'Hères, 38
Maîtrise d’ouvrage
UGA
Partenaires
Atelier Métis Architectes
VRD Paysage : H2MPC
Bureaux d’études
Economiste : DENIZOU
Structure Béton : CTG
Structure Métal : DUVERNEY
Structure Bois : BOIS CONSEIL
Fluides : TEB
QEB : TRIBU
Désamiantage : TAUW
Acoustique : EAI
Mission
Base loi MOP + EXE + DIAG
Surface
SP : 8 483m²
Coût
17,40 M€ HT
Crédits
© Studio Erick Saillet
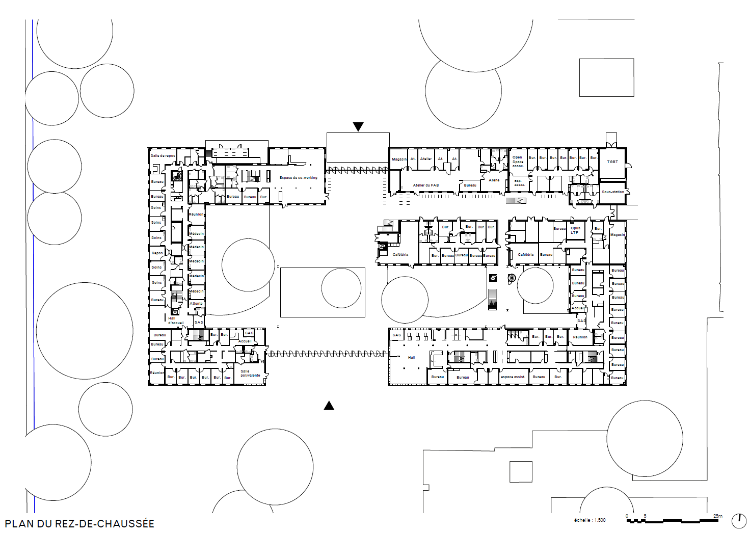
Situé au coeur du campus universitaire de Grenoble, la Halle Ampère est emblématique et appartient au patrimoine universitaire ‘‘industriel’’ situé au centre du Campus. Nous avons souhaité ramener l’attention sur les espaces vides de cette structure, pour les articuler autour d’un véritable parcours urbain. En effet, la disposition de plots bâtis, tels des boites situées sous certaines zones de la charpente métallique permet la création de poches et traversées couvertes. La Halle abrite alors tour à tour un complexe médical, des locaux administratif, une cafétéria, etc., qui s’articulent autour de patios intérieurs. L’ensemble des fonctions sont accessibles de façon indépendante depuis la cour intérieure, limitant la consommation énergétique du bâtiment.
L’intervention met à l’honneur l’ancienne structure : la charpente a été dénudée, mais la composition originelle du bâtiment est mise à l’honneur par la réinterprétation des strates horizontales qui composaient l’homogénéité du bâtiment à l’époque.Toutes les façades sont bardées d’ailes dont la torsion, à la façon des ailes d’éoliennes, assure la protection solaire des usagers du site. L’essence du projet est alors complète, puisque à l’expression d’une charpente métallique ancienne, patinée, rendue visible, le projet la complète avec l’usage de hautes technologies, blanches et lisses.
Services accueillis: entrepreneuriat étudiant, santé inter-universitaire, direction et services support du Crous, service social, logistique, fab-lab, service accompagnement, service culturel.
L’intervention met à l’honneur l’ancienne structure : la charpente a été dénudée, mais la composition originelle du bâtiment est mise à l’honneur par la réinterprétation des strates horizontales qui composaient l’homogénéité du bâtiment à l’époque.Toutes les façades sont bardées d’ailes dont la torsion, à la façon des ailes d’éoliennes, assure la protection solaire des usagers du site. L’essence du projet est alors complète, puisque à l’expression d’une charpente métallique ancienne, patinée, rendue visible, le projet la complète avec l’usage de hautes technologies, blanches et lisses.
Services accueillis: entrepreneuriat étudiant, santé inter-universitaire, direction et services support du Crous, service social, logistique, fab-lab, service accompagnement, service culturel.